对于初次使用天正建筑的用户来说,独立操作是存在一定困难的,比如立面图的绘制,根本无从下手,其实是有立面图对应功能的,直接使用就可以了,下面就来为大家进行演示吧。
天正建筑生成立面图教程1、进入到天正建筑软件,
2、点击菜单栏的“立面”,选择“建筑里面”,点击“确定”,

3、接着点击“ 工程管理”,选择“新建工程”,

4、然后挑选路径,输入文件名称,点击保存,

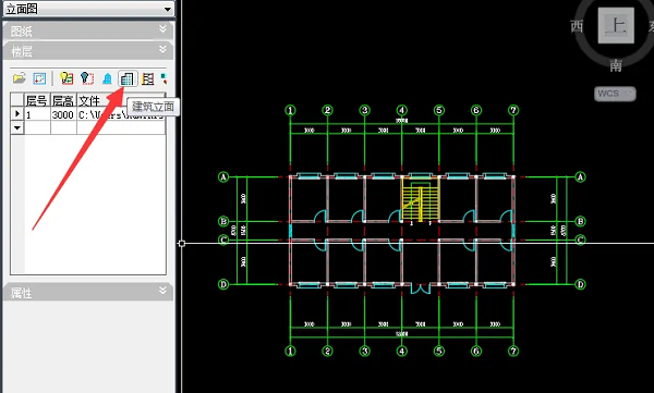
5、在“楼层”下点击图示按钮,完成图纸的添加,

6、紧接着点击“建筑立面”,

7、按照提示输入,生成对应的立面,

8、确认输出的立面是需要的,

9、点击“生成立面”,

10、选择路径后,点击“保存”。

拓展阅读:导入图片 | 算面积 | 填充图案 | 标注尺寸
以上就是天正建筑生成立面图教程的全部内容,望能这篇天正建筑生成立面图教程可以帮助您解决问题,能够解决大家的实际问题是乐呵呵网一直努力的方向和目标。

