天正给排水是一款基于AutoCAD平台所推出的一款专业排水系统设计软件,通过这款软件用户可以轻松的绘制出道路、管线以及构筑物等图像,并且这款软件中还可以计算用水情况,非常的智能好用。有时候用户在使用这款软件时需要将一些绘制好的平面图生成为系统图,生成为系统图之后方便进行后续的操作,只是一些用户还不知道要怎么操作天正给排水这款软件来生成系统图,所以接下来小编就跟大家分享一下具体的操作方法吧,感兴趣的朋友不妨一起来看看这篇教程。

1.首先第一步我们需要打开天正给排水软件,打开之后进入到软件的主界面中。

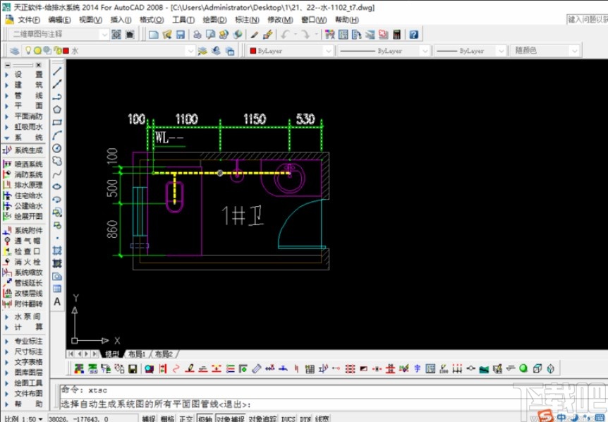
2.之后下一步我们需要在软件中打开想要生成系统图的目标文件,打开之后在软件界面可以看到目标文件。

3.之后一下一步我们点击左侧工具栏中的系统生成选项,然后就会弹出一个生成系统图的界面。

4.我们在这个弹出的界面中,选择管线类型,然后修改层高和楼层数量,修改之后点击“直接生成单层系统图”这个选项。

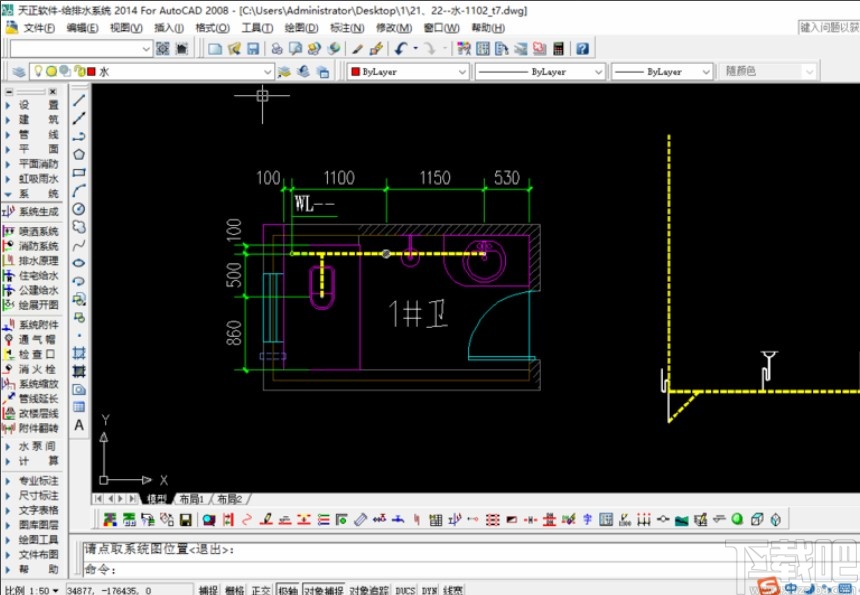
5.点击这个选项之后根据命令栏的提示,我们框选想要生成为系统图的所有平面图管线,然后按下键盘上的Enter键就可以将上传的系统图放置于工作空间中了。

6.最后我们就可以看到生成好的系统图了,可以对生成好的系统图进行一些修改或调整。

以上就是小编今天跟大家分享的天正给排水软件生成系统图的具体操作方法,还有不知道要如何操作的朋友赶紧试一试这个方法吧,希望这篇方法教程能够帮助到大家。

