PKPM是一款十分实用的建筑工程综合CAD软件,该软件可以直接从DWG文件中提取建筑模型进行节能设计,同时还可以进行节能和非节能设计的工程造价比较,从而帮助设计师和甲方选择最为合理的保温系统。我们在使用这款软件创建模型的过程中,在给模型添加一些轴线后,是需要检测添加的轴线是否有效的。但是该软件的专业性比较强,这给该软件的使用方面加大了难度,所以有很多朋友都不知怎么操作。那么接下来小编给大家详细介绍一下PKPM检测轴线有效性的具体操作方法,有需要的朋友可以看一看。

1.我们在软件中给一个模型添加轴线后,在界面右侧找到“楼层定义”选项,点击该选项再进行下一步操作。

2.接着在“楼层定义”选项下方会出现一个下拉框,我们在下拉框中选择“次梁布置”选项,来布置建模的次梁。

3.然后在界面右侧就会出现一个梁截面列表窗口,在窗口中的“新建”选项卡下方选中一个选项并点击,之后再点击“布置”选项。

4.随后在界面上方的小窗口底部选择“轴”选项,并在界面上点击需要布置次梁的轴线,就可以布置上了。

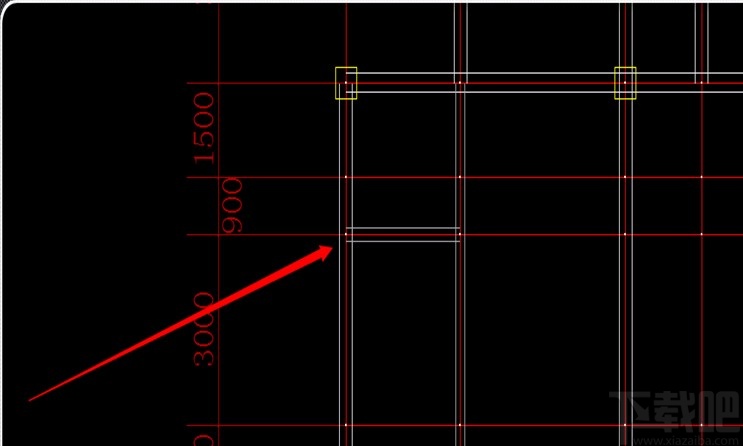
5.完成以上所有步骤后,我们就成功布置上了需要绘制的次梁;轴线上只要出现了白色的点,也就是节点,就可以布置梁、柱墙等,即轴线是有效的。

以上就是小编给大家整理的PKPM检测轴线的具体操作方法,方法简单易懂,有需要的朋友可以看一看,希望这篇教程对大家有所帮助。

