eplan是一款非常好用的电气设计软件,该软件界面直观友好,能够对所有流程和数据进行统一的数字化处理,从工程设计到生产,直至运行和维护,涵盖所有功能范围和流程步骤,功能十分强大。使用这款软件的朋友应该都知道,该软件的默认背景颜色是白色,但是这种颜色使用起来比较刺眼,在夜晚使用起来也很伤眼睛,所以我们可以根据自己的使用习惯修改软件的背景颜色。那么接下来小编就给大家详细介绍一下eplan修改背景颜色的具体操作方法,有需要的朋友可以看一看并收藏起来。

1.首先打开软件,我们可以看到软件的背景颜色是白色,这会使有些数据和器件不够突出。

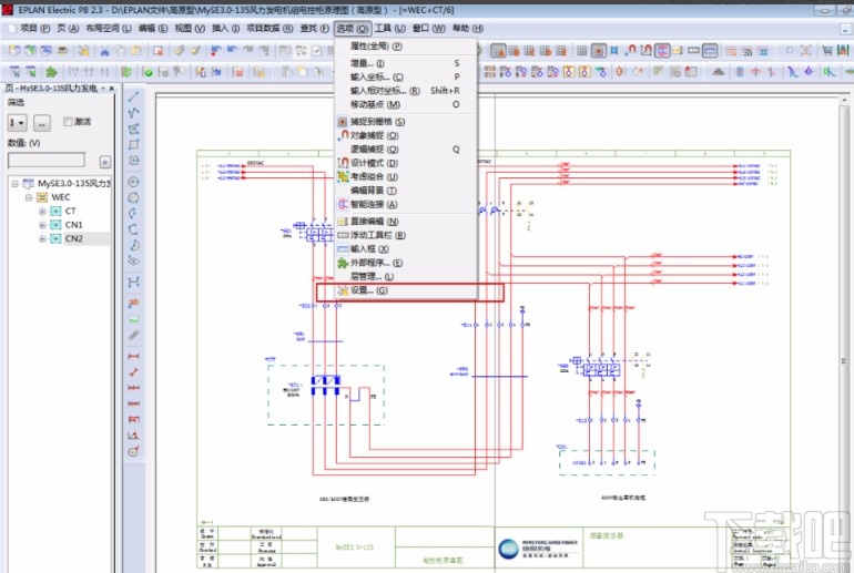
2.接着我们在界面顶部的菜单栏中点击“选项”,其下方会出现一个下拉框,我们在下拉框中选择“设置”选项。

3.然后界面上就会弹出一个设置窗口,在窗口左侧点击“用户”选项,其下方会出现一个下拉列表,在下拉列表选择“图形的编辑”选项,并在其子下拉列表中选择“2D”。

4.接下来在窗口右侧就可以看到颜色设置一栏,在该栏下方点击“配置”下拉按钮,根据自己的需要在下拉框中选择背景颜色,比如小编选择黑色。

5.选好背景颜色后,我们在窗口底部找到“确定”按钮,点击该按钮就可以修改背景颜色了。

6.完成以上所有步骤后,我们就成功修改背景颜色了;效果如下图所示,大家可以作为参考。

以上就是小编给大家整理的eplan修改背景颜色的具体操作方法,方法简单易懂,有需要的朋友可以看一看,希望这篇教程对大家有所帮助

