AutoCAD2019这款软件是一款非常好用的模型设计软件,其中有很多的功能都是非常实用的,也能够帮助用户方便快速的完成模型的设计。很多时候我们在操作这款软件时需要将一些项目文件导出为图片保存,并且图片的清晰度是有一定要求的,所以将项目导出为高清大图的操作是比较常用到的。只是一些用户还不知道要如何操作导出这个高清大图,那么接下来小编就跟大家分享一下AutoCAD2019导出高清大图的具体操作方法吧,感兴趣的朋友不妨一起来看看这篇方法教程,希望能够帮助到大家。

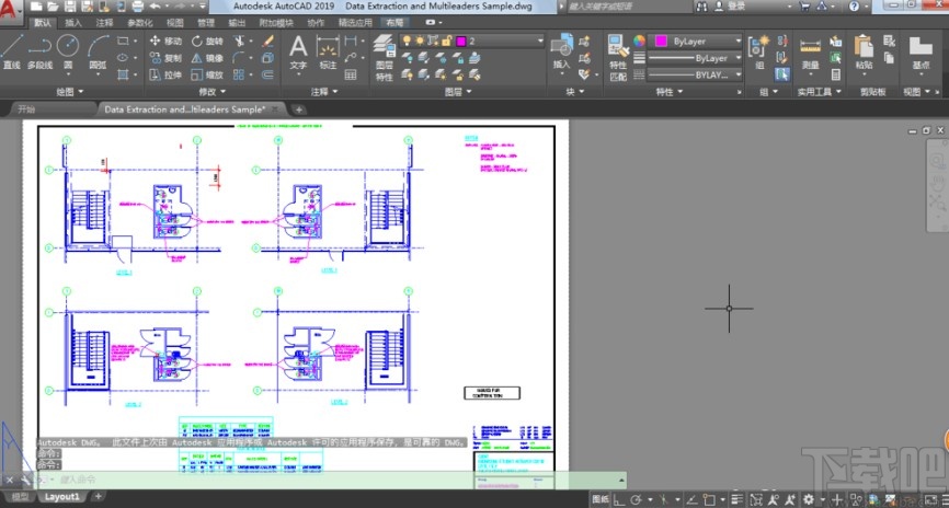
1.首先第一步我们打开软件之后,打开想要导出为高清大图的项目文件,打开之后如下图中所示。

2.接下来下一步,我们在界面的左上角找到软件图标之后点击它,在打开的菜单里面找到打印这个选项并点击。

3.点击打印选项之后,下一步在出现的打印机位置将打印机选择为PDF文件打印机,根据自己所有的打印机进行选择即可。

4.选择打印机之后,下一步我们在图纸尺寸位置打开下拉列表,将尺寸选择为最大的尺寸,如下图中所示。

5.选择好尺寸之后,我们就可以在界面中点击打印按钮开始打印了,如下图中所示。

6.打印完成之后,我们可以打开查看PDF文件,可以看到项目被打印的非常高清,并且尺寸也是最大的。

7.然后我们就可以通过PDF转换器将该PDF文件转换成图片保存了,这样就可以获得项目文件的高清大图了。

以上就是小编今天跟大家分享的使用AutoCAD2019这款软件的时候导出高清大图的具体操作方法,有需要的朋友赶紧试一试这个方法吧,希望这篇教程能够帮到大家。

