编辑图纸文件时,相信各位都会选择专业的CAD制图工具,下面乐呵呵网小编就详细为各位介绍关于迅捷CAD编辑器编辑文件的具体操作步骤哦,有需要的小伙伴们快来一起学习吧!
双击运行迅捷CAD编辑器软件

若是需要对已有DWG文件进行编辑,可直接在软件上打开文件。点击软件顶部的打开按钮,在弹出的窗口中,选择文件就行了

点击软件上编辑器,在工具栏上,能查看到多种编辑工具

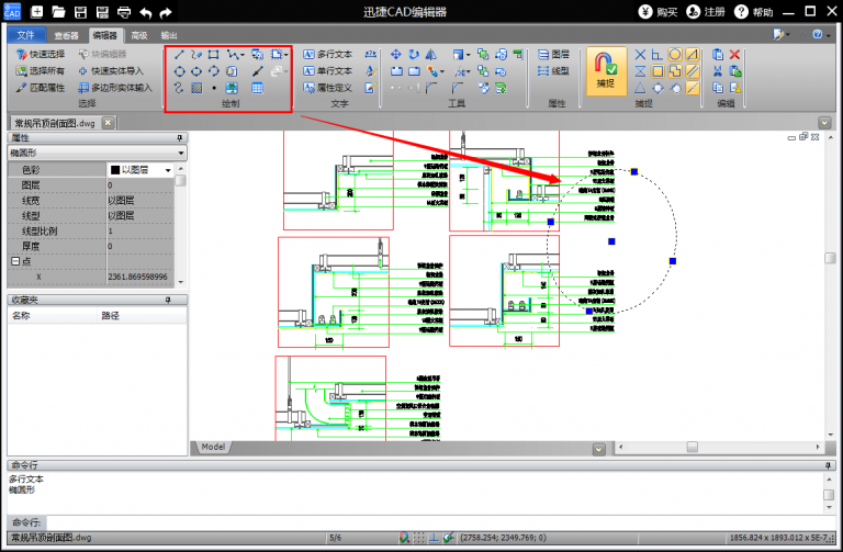
需要对文件进行绘制的话,在绘制模块里,选择各种绘制工具,然后在文档上进行绘制

需要在文件上添加文字时,点击文字模块,在文档上就能添加文字了

在工具栏上,可以选择其他的工具,对文件进行针对性的编辑,若是要自己新建一份文档的话,可直接在编辑器界面上的右侧空白处进行编辑

成功编辑好文件后,点击保存按钮,对文档进行存储

以上就是IE浏览器中文网站为大家带来的迅捷CAD编辑器编辑文件的具体操作步骤,希望对大家有所帮助,手机百度或者关注IE浏览器中文网站,每天了解最新的资讯内容。

