查看DWG等格式图纸文件的过程里,很多是把其打印出来,进行查看非常方便。那么倘若编辑好文件之后,相将其打印出来该如何操作呢?以下就是关于借助迅捷CAD编辑器打印文件的方法哦,一起和乐呵呵网小编来看看吧。
双击运行迅捷CAD编辑器软件

接下来在软件上打开文件,在编辑器菜单中,借助工具对文件进行编辑、修改

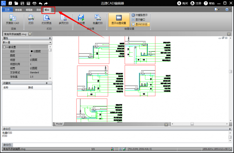
当完成文档编辑后,便可以将文档打印出来。点击软件菜单栏上的输出

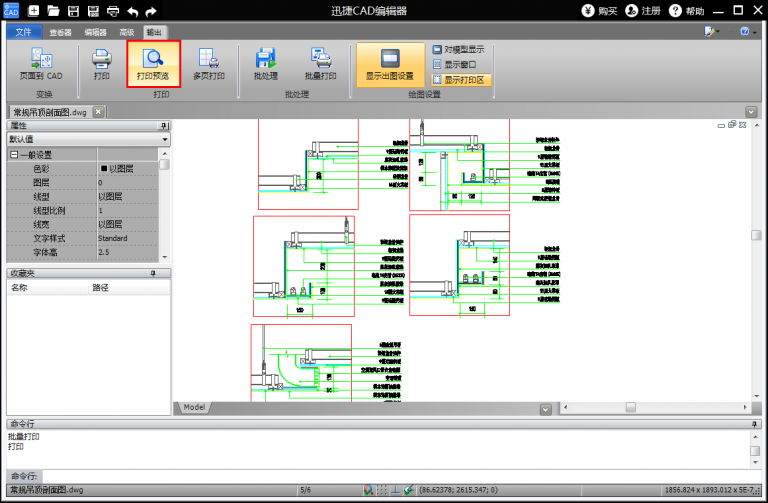
这时候可以看到多种文件打印方式,一般情况下,可以先点击打印预览,查看一下文档打印后的显示

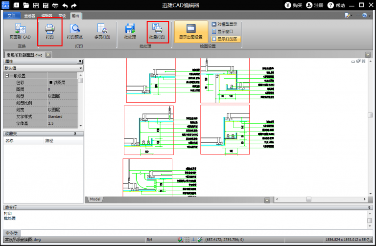
接下来单击打印,将设置好的文件打印出来即可。要是需要批量打印文件,也能点击批量打印按钮

以上就是IE浏览器中文网站为大家带来的迅捷打印文件的操作方法,希望对大家有所帮助,手机百度或者关注IE浏览器中文网站,每天了解最新的资讯内容。

