最近有用户反映,使用CAD快速看图测量数据的时候,发现测出来的结果和图纸上的原有数据对不上,而且是差的十万八千里,这让用户非常烦恼。那么,这到底是怎么一回事呢?又要怎么解决呢?下面,我们一起往下看看。
一、问题
图纸原来的是6873,测量出来的是24.37

二、解决方法
以下情况需要用到比例:布局测量、大样图测量、布局转模型后测量。
用法:打开图纸--点击工具栏“比例”按钮--选择已知线段的起点和终点--按提示输入这段线的实际长度--点确定--正常测量即可。


最近有用户反映,使用CAD快速看图测量数据的时候,发现测出来的结果和图纸上的原有数据对不上,而且是差的十万八千里,这让用户非常烦恼。那么,这到底是怎么一回事呢?又要怎么解决呢?下面,我们一起往下看看。
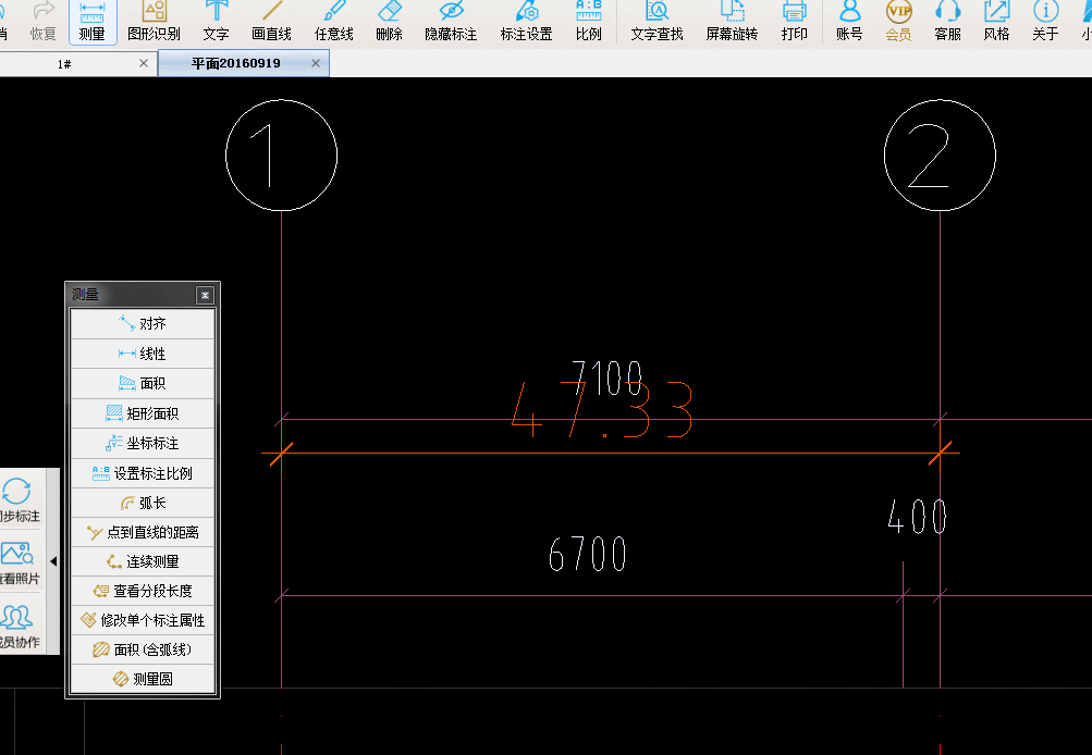
一、问题
图纸原来的是6873,测量出来的是24.37

二、解决方法
以下情况需要用到比例:布局测量、大样图测量、布局转模型后测量。
用法:打开图纸--点击工具栏“比例”按钮--选择已知线段的起点和终点--按提示输入这段线的实际长度--点确定--正常测量即可。

相关文章:1. CAD迷你看图中怎么更改图纸背景颜色?更改图纸背景颜色的操作步骤2. PS怎么放大眼睛?眼睛放大技巧分享3. 迅雷7怎么设置私人空间?迅雷私人空间的设置方法4. PS去除衣服褶皱教程?两个工具轻松搞定5. PDF如何提取页面?嗨格式PDF转换器提取页面的方法6. MindMaster怎么激活?MindMaster思维导图软件激活教程7. Power Designer怎么建立各类模型?建立各类模型的操作方法8. PDF怎么转换成txt格式?嗨格式PDF转换器将PDF转换成txt的方法9. 拍大师如何录全屏?轻松录制全屏视频的方法解析10. 如何正确使用CAD迷你看图中的功能栏?CAD迷你看图功能栏的功能介绍
网公网安备:皖ICP备2020019022号-8 Copyright ¢ 2020-2025 Powered by V1.8 All Rights Reserved 技术支持:乐呵呵网
声明:本站所有资源以学习为主