关于CAD快速看图打开图纸提示“外部参照未加载”的问题,小编已经向大家介绍了解决方法,不过最近有另外一个用户反映遇到了“参照文件未上传”的提示。那么,如果提示的是“参照文件未上传”我们应该怎么处理呢?具体的我们一起往下看看。
方法步骤
外部参照是将其他文件中的图形引用到当前图纸的一种形式,以外部参照的形式引用图形时,这部分图形并不记录在当前图纸中,只是记录了外部参照的位置和名字(类似文章中添加的超链接),当打开含有外部参照的图纸时,就会自动按照记录的路径去搜索外部参照文件。如果此时外部参照文件找不到,就无法识别并显示出引用的那部分图形。
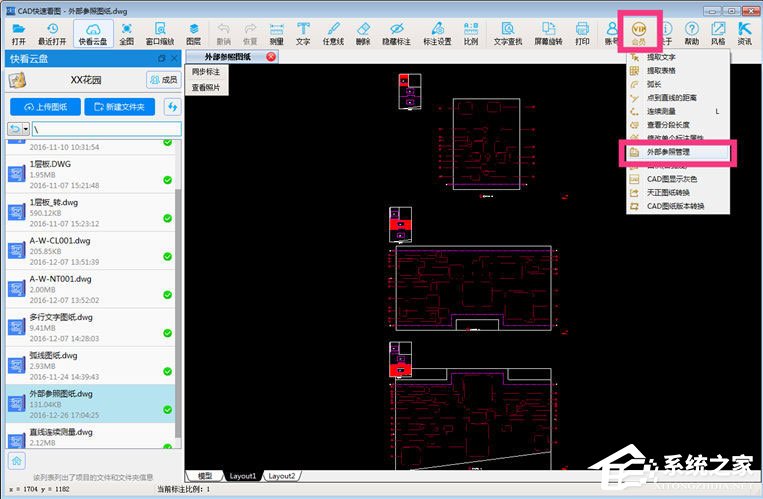
1、 点击软件上方工具栏中的VIP图标,下拉菜单中找到“外部参照管理”功能;

2、 在对话框中查看参照文件的名称,示例中参照文件有两个;

3、按照对话框中的提示,将参照文件上传到快看云盘;

4、参照文件全部上传到云盘后,重新打开之前的图纸就可以显示全了。


